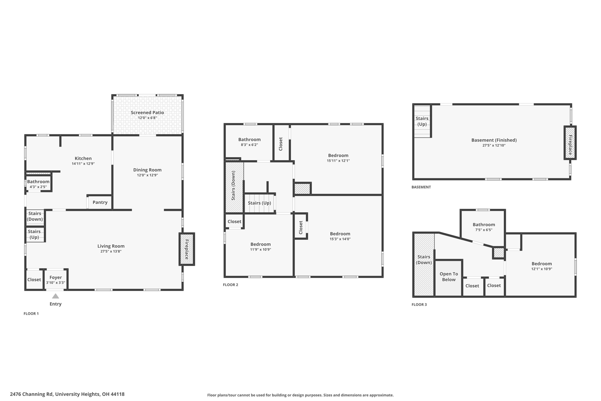
2476 Channing Rd
OH
Images
Floor Plans
Map
Previous Photo
Next Photo
Slideshow
Photo Grid
Hide
Previous
Next
Show more
Combined
Main Floor
Second Floor
Third Floor
Basement
Slideshow
Photo Grid
Hide
Previous
Next