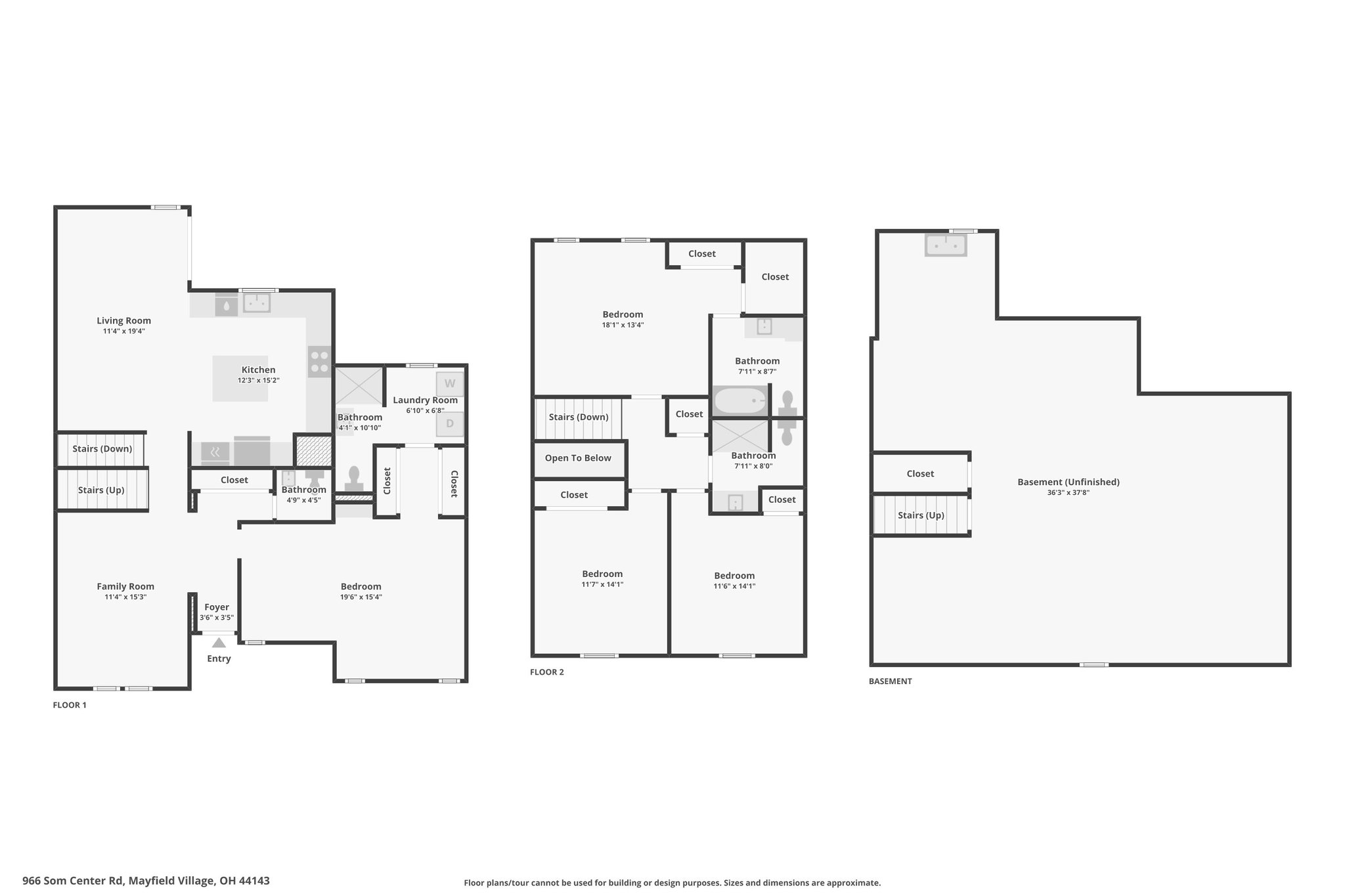
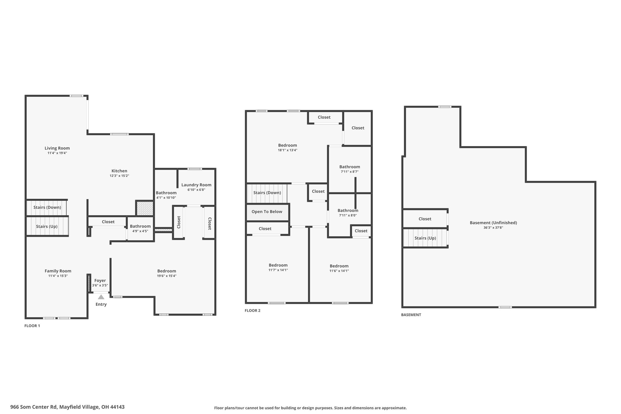
966 SOM Center Road
OH
Images
Floor Plans
3D Tour
Map
Previous Photo
Next Photo
Slideshow
Photo Grid
Hide
Previous
Next
Show more
Basement
Floor 1
Floor 2
Combined
Basement
Floor 1
Floor 2
Combined
Slideshow
Photo Grid
Hide
Previous
Next